غلاف الأنود الخارجي
الإستخدامات:
يعتمد غلاف الأنود الخارجي في مبدأ عمله؛ الحماية المهبطية للأنود الذواب. عندما يكون معدن الأنود وغلافه أكثر ميلاً للسالب تتكون عندها خلية التآكل الجلفاني، عندها ينتقل إلكترون معدن الأنود لغلاف الحماية، ومن ثم يتحول كامل غلاف الحماية إلى الجهد الكهربائي السلبي.
عندما يكون أنود سبيكة المعدن متآكل، لا يكون الغلاف متآكل، ما يؤدي للحصول على الحماية المهبطية.
نسبة مركبات المعادن الكيميائية (%):
| الدرجه | Mg | Al | Zn | Mn | Si | Cu | Ni | Fe | شوائب أخرى (الأقصى) | |
| (الأقصى) | (الأقصى) | (الأقصى) | (الأقصى) | للوحده | الجميع | |||||
| MGAZ31B | توازن | 2.5-3.5 | 0.6-1.4 | 0.2-1.0 | 0.08 | 0.01 | 0.001 | 0.003 | 0.05 | 0.30 |
| الدرجه | Al | Zn | In | Cd | Si | Cu | Fe | شوائب أخرى (الأقصى) | |
| (الأقصى) | (الأقصى) | (الأقصى) | للوحده | الجميع | |||||
| AlZnInCd | توازن | 2.5-4.5 | 0.018-0.050 | 0.005-0.020 | 0.10 | 0.10 | 0.15 | 0.02 | 0.10 |
الخصائص الإلكتروكيميائية:
| الدرجه | جهد الدائرة المفتوحة (-v respect to Cu/CuSO4) | جهد الدائرة المغلقة (-v respect to Cu/CuSO4) | الطاقة الفعلية (Ah/kg) | كفاية التيار % (Cu/CuSO4) |
| MGAZ31B | 1.57-1.67 | 1.47-1.57 | ≥1210 | ≥55 |
| الدرجه | جهد الدائرة المفتوحة (-v respect to Ag/AgCl) | جهد الدائرة المغلقة (-v respect to Ag/AgCl) | الطاقة الفعلية (Ah/kg) | كفاية التيار % (Ag/AgCl) |
| AlZnInCd | 1.10-1.18 | 1.05-1.12 | ≥2400 | ≥85 |
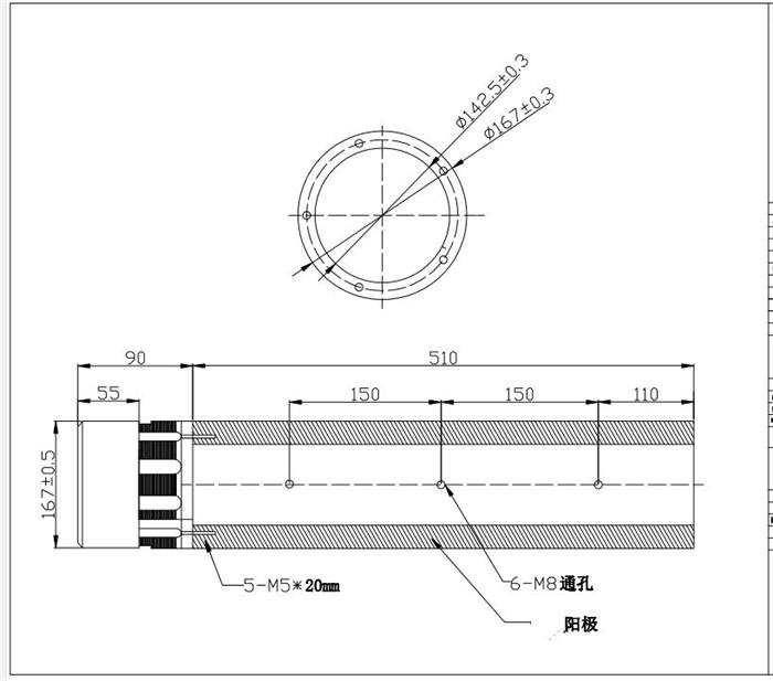
الأبعاد:
الآلات ومعدات الفحص:
المنتجات ذات الصلة

- أنود المغنسيومأنود المغنسيوم هو قطب متآكل (التضخية) شائع يستخدم هندسة نظام الحماية الكاثودية الكهروكيميائية. هذا الأنود الكلفاني متصل بأشكال فولاذية لحماية أو إبطاء سرعة الصدأ. لدى أنود المغنسيوم المتآكل نشاط كيميائي عالٍ. إن جهده الإلكتروني سالب نوعاً ما ، وجهده الحركي عال جداً. بالإضافة إلى صعوبة تكوين غشاء حماية فاعل منه على سطح المغنسيوم، فإن غشاء الحماية يتبدد بسهولة في الوسط المائي وتآكل المغنسيوم الذاتي قوي جداً. المغنسيوم المتآكل (التضحية) الخاص بنا يتضمن مغنسيوم خالص، تشكيلة سبائك Mg-Mn و Mg-Al-Zn-Mn. تستطيع شركة أنهوي...









